Коттеджный поселок «Новая Елизаветка»
Краснодар

Генплан проекта ЖК Коттеджный поселок «Новая Елизаветка»
Жилой комплекс «Новая Елизаветка» — современный проект, возведенный по технологии кирпично-монолитного строительства с фасадами, облицованным кирпичом.
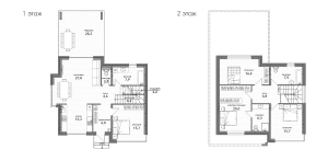
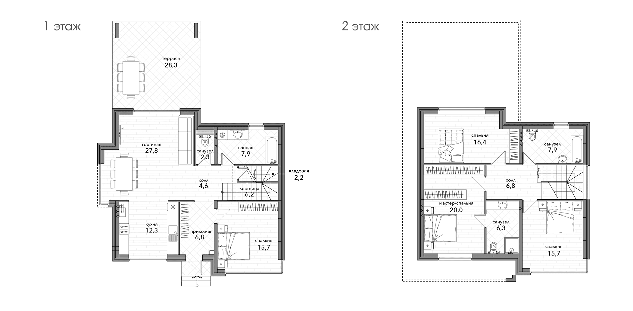
В проекте представлено множество планировочных решений. Все лоты сдаются с базовой отделкой и высотой потолков до 3,1 метра.
Территория комплекса благоустроена — ведется круглосуточное видеонаблюдение, имеются детские и спортивные площадки, эко-городок, велодорожки, парк с озером для неспешных прогулок. На территории предусмотрена школа на 616 мест и детский сад на 350 тест. Для автовладельцев имеется стоянка.
ЖК «Новая Елизаветка» расположен в районе с хорошо развитой инфраструктурой. В пешей доступности имеется все необходимое — образовательные и медицинские учреждения, продовольственные магазины, кафе и рестораны.








