жилой комплекс
Хорошая Погода
ул им. Кирилла Россинского
Город / район:
Краснодар
застройщик:

Генплан проекта ЖК Хорошая Погода
Жилой комплекс «Хорошая Погода» представляет собой 4 корпуса высотой в 16 этажей. Фасад выполнен из вентилируемых материалов.
В комплексе предложено множество планировочных решений: в наличии квартиры, как классического типа, так и европланировки. Они сдаются с подчистовой отделкой, высота потолков составляет 2,7 метра.
Внутренний двор оснащен современными детскими и спортивными площадками. На территории комплекса выполнено озеленение. Для владельцев автомобилей предусмотрена крытая стоянка и отдельный многоуровневый паркинг.
ЖК «Хорошая Погода» расположен в районе завода радиоизмерительных приборов. В 15 минутах пешком находятся: детские сады, школы, больницы, магазины. До центра Краснодара — 15 минут транспортом.
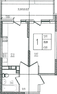
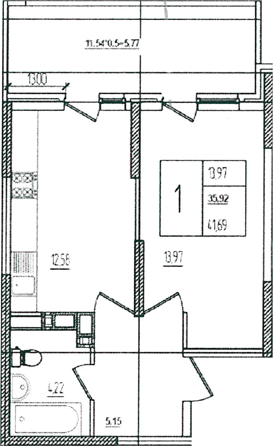
Цены и планировки квартир
Количество квартир в ЖК Хорошая Погода: 351
Цена:
5448049.2 ₽
Категория:
Этаж:
3 из 16
Площадь:
35.92 м2
Кухня:
12.58 м2
Балкон:
11.54 м2
Потолок:
2.7 м
Цена:
5448049.2 ₽
Категория:
Этаж:
8 из 16
Площадь:
35.92 м2
Кухня:
12.58 м2
Балкон:
11.54 м2
Потолок:
2.7 м
Цена:
5448049.2 ₽
Категория:
Этаж:
15 из 16
Площадь:
35.92 м2
Кухня:
12.58 м2
Балкон:
11.54 м2
Потолок:
2.7 м
Где находится ЖК Хорошая Погода?
Адрес ЖК
Краснодар, ул им. Кирилла Россинского
Устали выбирать квартиру?
Не только лучшие варианты недвижимости, но и ипотека, рассрочка и скидки на многие из них. Звоните или пишите на WhatsApp, мы поможем.







