Грани
Краснодар

Генплан проекта ЖК Грани
Проект «Грани» представляет собой 6 жилых корпусов высотой 19 этажей. Утепление наружной части домов выполнено с использованием базальтового стекловолокна, фасад облицован керамическим кирпичом. В каждом корпусе предусмотрены кладовые помещения, места для хранения колясок и велосипедов.
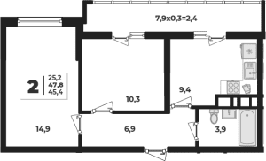
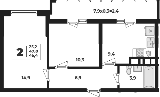
В ЖК «Грани» предложено множество планировочных решений: в наличии квартиры, как классического типа, так и европланировки. Они сдаются с подчистовой отделкой и высотой потолков 2,8 метра.
В жилом комплексе предусмотрены места для отдыха и прогулок, зона с фонтаном, оборудованы современные детские и спортивные площадки. Для автовладельцев предусмотрен паркинг на 1417 мест. На территории комплекса спроектированы коммерческие помещения общей площадью 2500 кв. м.
Комплекс «Грани» находится в развитом районе Западный обход. До центра города можно добраться за 20 минут транспортом. В 3 минутах пешком находится остановка общественного транспорта.








